דף הבית
פרויקטים
מחקר
אודות
English
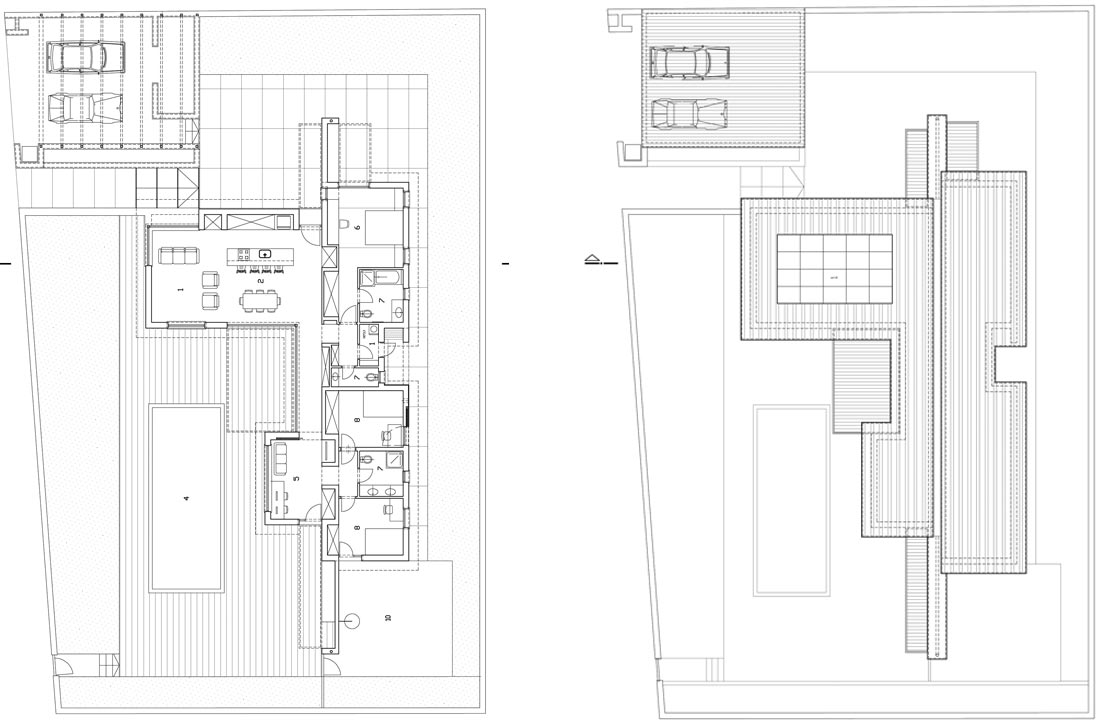
בית בתל עדשים
חזרה לרשימת הפרויקטים
חזרה לראש הדף