דיור בר השגה שכונת דורות מנוף

חזרה לרשימת הפרויקטים

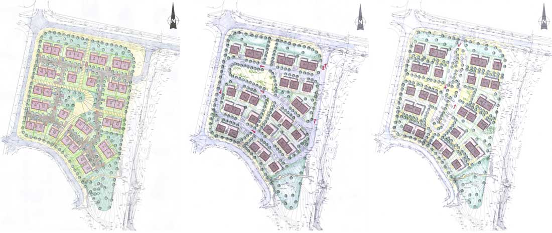
זכיה בתחרות מוזמנים

שכונה קהילתית ייחודית בישוב קיים מתבגר. התכנון מתאים עצמו לצרכים המשתנים בישוב מתפתח ומיועד הן לאוכלוסיה המבוגרת והן לצעירה.
הבתים קטנים ובצפיפות גבוהה מהרגיל באזור ועם זאת משתלבים במרקם ההומוגני הקיים ומאפשרים אינטראקציה חברתית בין הדורות.
הן בתכנית הבינוי והן בתכנון הבתים, באה לידי ביטוי התפיסה ה'ירוקה'.

בשיתוף עם אדר' אירית יעקבי

חזרה לראש הדף