דף הבית
פרויקטים
מחקר
אודות
English
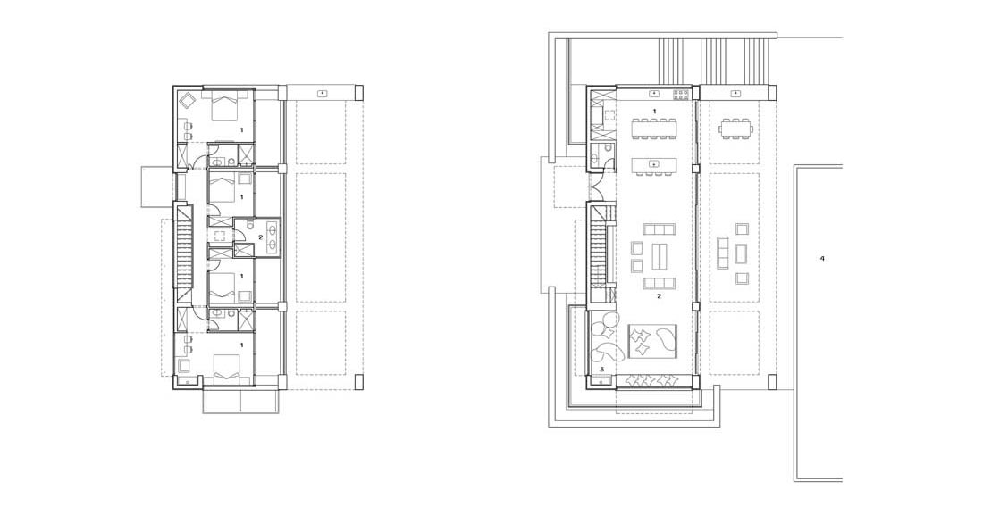
בית נופש בלסבוב יוון
חזרה לרשימת הפרויקטים
אדריכלות נוף- צורנמל טורנר
חזרה לראש הדף